L型倉式氣力輸送泵
![]() |
概述
本產品采用正壓氣力輸送方式輸送粉末狀物料,適用于電廠粉煤灰、水泥、水泥生料、礦粉等輸送,可根據具體地形布置輸送管道,實現集中、分散、大高度、長距離 輸送,輸送過程不受氣候條件影響,能確保物料不受潮,利于生產和環(huán)境保護。本設備配置自動化操作臺,可實現手動和自動控制,自動控制采用繼電器或微機兩種 形式。通過長期運行,實踐證明,其性能穩(wěn)定,質量可靠,無粉塵污染,是較理想的氣力輸送設備。 主要技術參數
注:以上表內所到數據為粉煤灰在輸送管當量長度250米內的實測值。 |
|||||||||||||||||||||||||||||||||||||||||||||||||||||||||||||||||||||||||
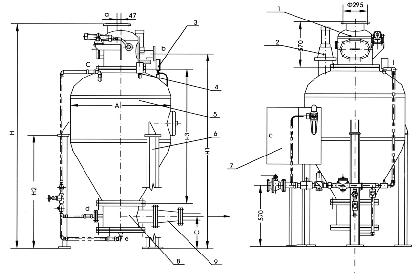
單倉泵外形及安裝尺寸表
型號/代號
|
L-0.8
|
L-1.2
|
L-1.4
|
L-1.6
|
L-1.8
|
L-2.0
|
L-2.2
|
L-2.4
|
A
|
Φ816
|
Φ1200
|
Φ1420
|
Φ1628
|
Φ1828
|
Φ2028
|
Φ2228
|
Φ2428
|
B
|
350
|
420
|
420
|
420
|
420
|
420
|
550
|
550
|
C
|
260
|
380
|
380
|
380
|
380
|
400
|
550
|
550
|
D
|
810
|
1350
|
1500
|
1600
|
1800
|
2000
|
2200
|
2400
|
E
|
510
|
730
|
880
|
930
|
1020
|
1150
|
1260
|
1360
|
F
|
1280
|
1025
|
1170
|
1205
|
1600
|
1355
|
1500
|
1562
|
G
|
3-Φ22
|
3-Φ22
|
3-Φ22
|
3-Φ22
|
3-Φ22
|
3-Φ33
|
3-Φ33
|
3-Φ38
|
H
|
2000
|
2780
|
3115
|
3380
|
3635
|
3850
|
4315
|
4520
|
H1
|
1946
|
1380
|
2700
|
2735
|
3260
|
3310
|
3840
|
4079
|
H2
|
1211
|
1390
|
1560
|
1435
|
1555
|
1610
|
1610
|
1800
|
H3
|
1081
|
1653
|
2010
|
2300
|
2500
|
2700
|
2964
|
3190
|
L1
|
181
|
205
|
220
|
280
|
250
|
265
|
350
|
352
|
L
|
245
|
395
|
410
|
470
|
440
|
465
|
550
|
552
|
R
|
290
|
450
|
450
|
500
|
500
|
550
|
700
|
700
|
a
|
DN200
|
|||||||
b
|
DN40
|
DN80
|
DN100
|
|||||
c
|
DN25
|
DN40
|
DN25
|
DN40
|
DN25
|
|||
d
|
DN200
|
DN40
|
||||||
e
|
ZG1*
|
ZG1/2*
|
||||||
f
|
DN65
|
DN100
|
DN125
|
|||||
說明:當進行長距離輸送時,供氣管 M 將根據實際情況調整加大。
單倉泵外形及安裝示意圖
下一頁:正壓多泵制輸送系統(tǒng)



